I. GIỚI THIỆU CHUNG CƯ IMPERIA GARDEN


Chủ đầu tư: Công ty cổ phần HBI
Tên dự án: Chung cư Imperia Garden
Địa chỉ: Số 203 Nguyễn Huy Tưởng, Thanh Xuân, Hà Nội
Tổng số tầng: 35 tầng
Tổng diện tích xây dựng: 42.159 m2
Khởi công: Tháng 1/2014
Dự kiến hoàn thành: Quý IV 2017
Tên dự án: Chung cư Imperia Garden
Địa chỉ: Số 203 Nguyễn Huy Tưởng, Thanh Xuân, Hà Nội
Tổng số tầng: 35 tầng
Tổng diện tích xây dựng: 42.159 m2
Khởi công: Tháng 1/2014
Dự kiến hoàn thành: Quý IV 2017
II. QUY MÔ & TIỆN ÍCH CHUNG CƯ 203 NGUYỄN HUY TƯỞNG
Dự án Imperia Garden – 203 Nguyễn Huy Tưởng là Tổ hợp văn phòng, nhà ở cao cấp kết hợp dịch vụ thương mại được đầu tư xây dựng trên khu đất 42,2ha tại số 203 Nguyễn Huy Tưởng


Đất xây dựng trường Tiểu học khoảng 6.046,3m2
Đất xây dựng nhà ở thấp tầng 3.699,1m2
Đất đường giao thông nội bộ 7.345,32
Đất cây xanh nhóm nhà ở 1.117,6m2
Đất xây dựng công trình hỗn hợp văn phòng TMDV hiện có 5.893,2m2
Đất xây dựng nhà ở chung cư cao tầng kết hợp DVTM 18.057,7m2
Đất xây dựng nhà ở thấp tầng 3.699,1m2
Đất đường giao thông nội bộ 7.345,32
Đất cây xanh nhóm nhà ở 1.117,6m2
Đất xây dựng công trình hỗn hợp văn phòng TMDV hiện có 5.893,2m2
Đất xây dựng nhà ở chung cư cao tầng kết hợp DVTM 18.057,7m2
Chung cư Imperia Garden hứa hẹn mang tới cuộc sống hoàn hảo cho cư dân tại đây một không gian sống thực sự đẳng cấp, dự án được đầu tư hệ thống hạ tầng tiện ích và dịch vụ đồng bộ, khép kín bao gồm: các trung tâm chăm sóc sức khỏe và làm đẹp như bể bơi 4 mùa, khu tập gym, khu vui chơi trẻ em, trường học, siêu thị mua sắm, hầm đỗ xe thông minh…, các khoảng cây xanh đan xen giúp làm hài hòa cảnh quan và không gian kiến trúc tổng thể và góp phần điều hòa không khí, tạo không gian nghỉ ngơi thư giãn, tất cả nhằm kiến tạo một môi trường sống chất lượng cho cư dân.
Được đầu tư tỉ mỉ trong khâu thiết kế, mỗi căn hộ tại Imperia Garden – 203 Nguyễn Huy Tưởng đều có sự sắp xếp linh hoạt nhằm tối ưu hóa diện tích sử dụng và đảm bảo sự lưu thông không khí và ánh sáng tự nhiên cho căn nhà. Tất cả các phòng trong một căn hộ đều có thể đón sáng tự nhiên và sở hữu tầm nhìn thoáng đãng. Các không gian cũng được sắp xếp hợp lý tạo sự thuận tiện cho các sinh hoạt hàng ngày, vừa mang nét hiện đại phù hợp với lối sống trẻ, vừa tôn trọng sự kín đáo theo truyền thống gia đình Việt. Các căn hộ được thiết kế hợp lý từ 3 đến 4 phòng ngủ phù hợp cho tất cả các khách hàng có nhu cầu sống tiện nghi tại Imperia Garden. Quý khách đều có thể dễ dàng tìm cho mình căn hộ phù hợp với diện tích đa dạng từ: 60m2 – 66m2 – 78,4 m2 – 90,5 m2 – 97,6 m2 – 110 m2 – 120 m2.
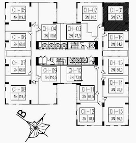
III. THIẾT KẾ CHI TIẾT XEM
Các loại diện tích của Blog A - Chung cư Imperia Garden:
- Khối 29 tầng: có diện tích từ 65m2 - 120m2
- Khối 35 tầng: Có diện tích từ 64,9 - 119,7m2.
| Mặt bằng căn hộ tòa A - Khối 29T |
| Mặt bằng căn hộ tòa A - Khối 35 tầng. |
Với định hướng phát triển một Imperia Garden đúng chuẩn theo mô hình Imperia An Phú, khu căn hộ được đánh giá là 1 trong 5 khu căn hộ hiện đại tốt nhất của TP HCM; với cam kết mạnh mẽ sẽ lựa chọn những nhà thầu uy tín, có chuyên môn sâu rộng và bề dày kinh nghiệm để triển khai dự án với chất lượng tốt nhất và đúng tiến độ.
Imperia Garden 203 Nguyễn Huy Tưởng là lựa chọn lý tưởng cho các gia đình muốn sở hữu nhà ở tại các quận trung tâm Tp. Hà Nội và là dự án được trông đợi nhất năm 2015.
Phối cảnh bể bơi và vườn cây xanh tại Imperia Garden – 203 Nguyễn Huy Tưởng

Không có nhận xét nào:
Đăng nhận xét